header-logo.png

Dom 55,5 m2 | Działka 600m | wykończony

mazowieckie, Lesznowola, Łazy

650 000 zł

+99 Dom na sprzedaż w Lesznowola Łazy Łączności 128 o powierzchni 56 mkw

Opis

Do sprzedania dom w stanie deweloperskim o powierzchni mieszkalnej 55,5 m2 (bez klatki schodowej) w Łazach przy ul. Łączności 128.

Powierzchnia działki 600 m2. Na działce przebiega linia energetyczna wysokiego napięcia (ustanowiona służebność przesyłu). Dodatkowo jest ustanowiona...

Do sprzedania dom w stanie deweloperskim o powierzchni mieszkalnej 55,5 m2 (bez klatki schodowej) w Łazach przy ul. Łączności 128.

Powierzchnia działki 600 m2. Na działce przebiega linia energetyczna wysokiego napięcia (ustanowiona służebność przesyłu). Dodatkowo jest ustanowiona służebność przejścia i przejazdu dla działki położonej głębiej (4 m od granicy z sąsiednią działką).



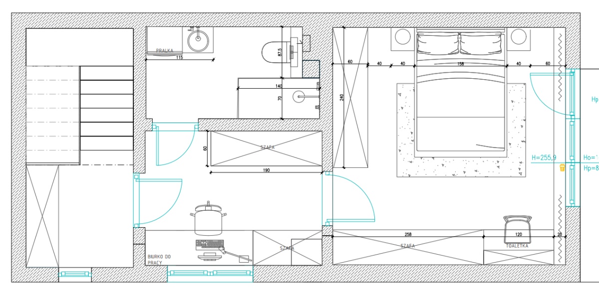
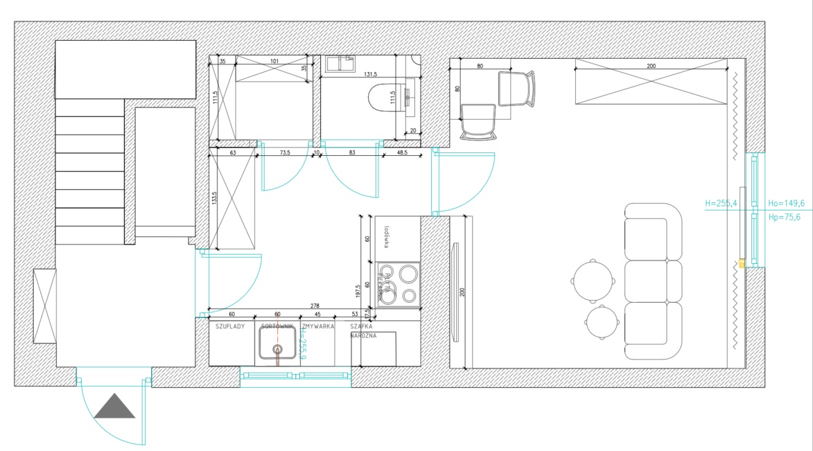
UKŁAD: parter 28 m2: kuchnia, WC, salon z wyjściem na ogródek 1 piętro 27,5 m2: łazienka, gabinet i sypialnia.

BUDYNEK: Budynek z lat ok 1950 roku.

STAN: cena w ogłoszeniu obejmuje: nowe instalacje, wylewki, piec dwufunkcyjny gazowy, ocieplenie fundamentów i ścian, wymieniony dach, nowe okna i rynny.

STANDARD WYKOŃCZENIA: panele podłogowe AC4 na podłogach w pokojach i kuchni, płytki w korytarzu, schodach i łazience. Nowe meble kuchenne wykonane przez stolarza (bez sprzętu AGD).

UWAGA: Aktualnie w mieszkaniu trwa remont. Planowany termin zakończenia prac przewidziany na lipiec. Dołączone zdjęcia pochodzą z innego w pełni wykończonego przez nas mieszkania w tym samym budynku. Możliwe oględziny celem pokazania standardu wykończenia.

MEDIA: prąd, woda, gaz, kanalizacja

OD KOGO: bezpośrednio od właściciela. BRAK PROWIZJI PRZY ZAKUPIE.

KOMUNIKACJA: Świetne połączenie komunikacyjne z Warszawą. Przystanek autobusowy 5 min pieszo.

OPCJA:

Istnieje możliwość zamiany na mieszkanie w Warszawie lub okolicach.

Agencje zapraszam tylko z klientami (prowizja po stronie kupującego).

Szczegóły oferty

  • Cena:

  • Wysokość czynszu:

  • Rodzaj budynku:

  • Powierzchnia całkowita:

  • Powierzchnia użytkowa:

  • Liczba pokoi:

  • Liczba kondygnacji:

  • Rok budowy budynku:

  • Materiał budowlany:

  • Pokrycie dachu:

  • 650 000 zł

  • -

  • bliźniak

  • 70 m2

  • 56 m2

  • 2

  • 2

  • 1950

  • cegła

  • blacha

  • Podpiwniczenie:

  • Garaż:

  • Elewacja:

  • Stan budynku:

  • Okna:

  • Instalacje:

  • Ogrzewanie:

  • Charakter:

  • Dojazd:

  • nie

  • -

  • -

  • do wykończenia

  • częściowo wymienione

  • wymienione

  • własne gazowe – junkers

  • jednorodzinny

  • asfalt

Działka

  • Powierzchnia:

  • Wymiary:

  • 600 m2

  • 20x30

  • Zagospodarowanie działki:

  • Ogrodzenie:

  • zagospodarowana

  • tak

Adres mazowieckie, Lesznowola, Łazy