header-logo.png

Nowoczesny dom jednorodzinny

lubelskie, Międzyrzec Podlaski, Międzyrzec Podlaski

469 000 zł

+99 Dom na sprzedaż w Międzyrzec Podlaski Międzyrzec Podlaski Tłuściec o powierzchni 210 mkw

Opis

Na sprzedaż dom jednorodzinny z poddaszem użytkowym. Dom znajduje się w miejscowości Tłuściec, usytuowany w zabudowie domów jednorodzinnych. Podłączone są media, tj. prąd i woda. Posiada również system kominkowy. Dom sprzedawany jest w stanie surowym zamkniętym.

Dom zwieńczony...

Na sprzedaż dom jednorodzinny z poddaszem użytkowym. Dom znajduje się w miejscowości Tłuściec, usytuowany w zabudowie domów jednorodzinnych. Podłączone są media, tj. prąd i woda. Posiada również system kominkowy. Dom sprzedawany jest w stanie surowym zamkniętym.

Dom zwieńczony jest wielospadowym dachem, pokryty blachodachówka firmy Pruszyński Fiord.

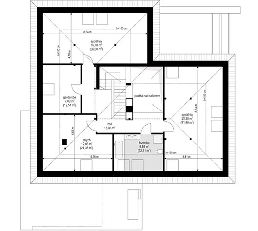
Okna najwyższej jakości trzyszybowe Veka. Architektura projektu jest nowoczesna i łączy w sobie tradycyjną bryłę ze spadzistym dachem z atrakcyjnym detalem architektonicznym. Bryłę domu zaplanowano na planie litery "T" - poddasze przekryte jest dachem w literę "L", a fragmenty zadaszenia nad garażem, podestem wejściowym i tarasem przykryto dodatkowymi płaskimi dachami. Duże okna otwierające wnętrze domostwa na ogród są niewątpliwie ozdobami budynku i podkreślają jego nowoczesny charakter. Wnętrze domu jednorodzinnego podzielono na część dzienną z otwartą przestrzenią salonu z otwarciem — pustką z antresolą na poddaszu, na część gospodarczą budynku — z garażem i pomieszczeniami gospodarczymi, oraz na dwie części sypialniane: na parterze i dodatkowym pokojem, z dwiema lub trzema sypialniami na poddaszu. Projekt domu jednorodzinnego to niewątpliwie willa dla osób lubiących nowoczesną architekturę.

Możliwość powiększenia działki do 76 ar.

Cena domu wraz z działką jest okazyjna i wynosi jedynie 469 tys. zł. W razie pytań proszę o kontakt telefoniczny. Możliwe jest obejrzenie nieruchomości.

Szczegóły oferty

  • Cena:

  • Wysokość czynszu:

  • Rodzaj budynku:

  • Powierzchnia całkowita:

  • Powierzchnia użytkowa:

  • Liczba pokoi:

  • Liczba kondygnacji:

  • Rok budowy budynku:

  • Materiał budowlany:

  • Pokrycie dachu:

  • 469 000 zł

  • -

  • wolnostojący

  • 300 m2

  • 210 m2

  • 6

  • 2

  • 2021

  • pustak

  • blacha

  • Podpiwniczenie:

  • Garaż:

  • Elewacja:

  • Stan budynku:

  • Okna:

  • Instalacje:

  • Ogrzewanie:

  • Charakter:

  • Dojazd:

  • nie

  • w budynku

  • -

  • do wykończenia

  • nowe PCV

  • -

  • własne gazowe – junkers

  • jednorodzinny

  • asfalt

Działka

  • Powierzchnia:

  • Wymiary:

  • 3000 m2

  • -

  • Zagospodarowanie działki:

  • Ogrodzenie:

  • niezagospodarowana

  • nie

Adres lubelskie, Międzyrzec Podlaski, Międzyrzec Podlaski