header-logo.png

Dom w Piastowie, 160 m2, garaż, odbiór wiosna 2026.

mazowieckie, Piastów, Piastów

1 670 000 zł

+99 Dom na sprzedaż w Piastów Piastów Żeromskiego o powierzchni 160 mkw

Opis

Zapraszam do obejrzenia domu dwulokalowego zlokalizowanego w Piastowie.

Inwestycja jest bliska ukończenia. Dom znajduje się w cichej okolicy, w drugiej linii zabudowy, z wygodnym wjazdem z kostki, wokół przyjemna zabudowa sąsiedzka ze sporą ilością zieleni.

Główne parametry:
-...

Zapraszam do obejrzenia domu dwulokalowego zlokalizowanego w Piastowie.

Inwestycja jest bliska ukończenia. Dom znajduje się w cichej okolicy, w drugiej linii zabudowy, z wygodnym wjazdem z kostki, wokół przyjemna zabudowa sąsiedzka ze sporą ilością zieleni.

Główne parametry:
- powierzchnia użytkowa lokalu to 159,76 m2
- ogródek ma ponad 150 m2
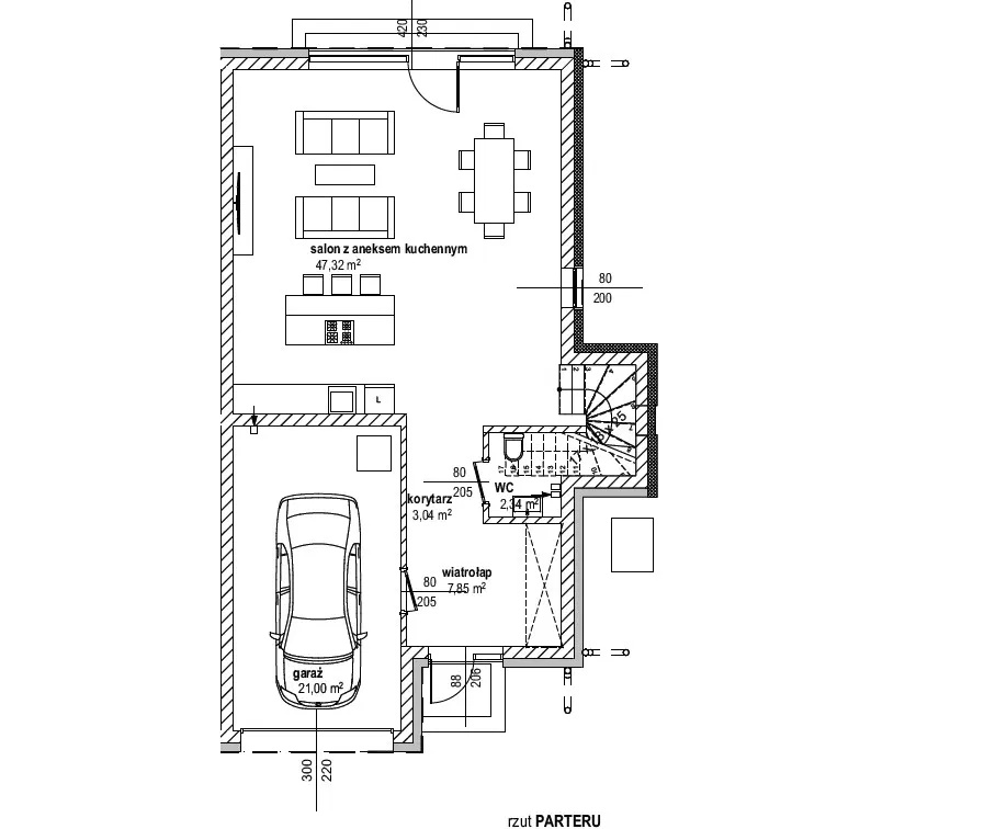
- PARTER: duży wiatrołap, salon z kuchnią (ok 47 m2), toaleta, wygodny garaż o powierzchni 21 m2 w bryle budynku
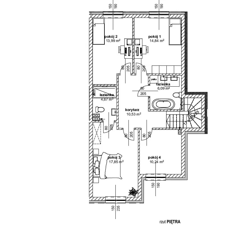
- PIĘTRO: 4 duże sypialnie (ok. 14+15+18+10 m2) oraz 2 łazienki
- garaż na jedno auto plus drugie wygodne miejsce do parkowania na terenie
- ogrzewanie podłogowe w całym domu, zasilane oszczędną pompą ciepła
- przygotowanie do montażu klimatyzacji we wszystkich pokojach,
- media woda oraz kanalizacja miejska (MPWiK), szybki internet (światłowód)

Zakończenie wszelkich prac budowlanych oraz zagospodarowania terenu planowane jest na wiosnę 2026r.

Inwestycja objęta Deweloperskiem Funduszem Gwarancyjnym, sprzedaż realizowana bezpośrednio przez dewelopera (adres strony wwwperydomycom)

Zapraszam do kontaktu i prezentacji.

*z góry dziękuję za wszelkie usługi brokerskie/agencyjne, nie skorzystam

Szczegóły oferty

  • Cena:

  • Wysokość czynszu:

  • Rodzaj budynku:

  • Powierzchnia całkowita:

  • Powierzchnia użytkowa:

  • Liczba pokoi:

  • Liczba kondygnacji:

  • Rok budowy budynku:

  • Materiał budowlany:

  • Pokrycie dachu:

  • 1 670 000 zł

  • -

  • bliźniak

  • 160 m2

  • 160 m2

  • 5

  • 2

  • 2026

  • beton komórkowy

  • blacha

  • Podpiwniczenie:

  • Garaż:

  • Elewacja:

  • Stan budynku:

  • Okna:

  • Instalacje:

  • Ogrzewanie:

  • Charakter:

  • Dojazd:

  • nie

  • w budynku

  • -

  • do wykończenia

  • nowe PCV

  • -

  • własne dla budynku

  • -

  • asfalt

Działka

  • Powierzchnia:

  • Wymiary:

  • 160 m2

  • -

  • Zagospodarowanie działki:

  • Ogrodzenie:

  • zagospodarowana

  • tak

Adres mazowieckie, Piastów, Piastów