header-logo.png

Sprzedam dom, stan surowy, duża działka- Słupno

mazowieckie, Radzymin,

580 000 zł

+99 Dom na sprzedaż w Radzymin  Słupno o powierzchni 160 mkw

Opis

Sprzedam dom w budowie w stanie surowym otwartym.
Dom jest usytułowany w podwarszawskiej miejscowości Słupno, przy ulicy Wspólnej.
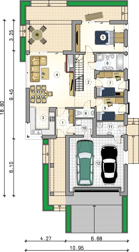
Dom jest budowany według projektu: Merlin II z wersją posiadającą poddasze użytkowe- łącznie około 160m2 plus garaż.
Piękna, cicha, spokojna okolica. W...

Sprzedam dom w budowie w stanie surowym otwartym.
Dom jest usytułowany w podwarszawskiej miejscowości Słupno, przy ulicy Wspólnej.
Dom jest budowany według projektu: Merlin II z wersją posiadającą poddasze użytkowe- łącznie około 160m2 plus garaż.
Piękna, cicha, spokojna okolica. W pobliżu domy jednorodzinne, łąki i las. Idealne miejsce dla osób chcących uciec od zgiełku ulic Warszawskich. Na sąsiednich działkach nie ma jeszcze żadnych zabudowań, więc z okien roztacza się widok na pola, łąki, las. Zbudowania widać z dalszej odległości, co sprawia, że miejsce jest wyjątkowo prywatne.
Do domu prowadzi prywatna droga (udziały w drodze w cenie).
Do Warszawy- około 15min autem. Można także dojechać autobusem miejskim linii 738 (trasa Radzymin-Warszawa).
Obecne dom jest zadaszony, bez wstawionych okien, nieocieplony, bez zrobionej hydrauliki i elektryki. Do działki jest podłączony prąd.
Na działce jest własna studnia, w planach jest szambo.
Posiadam komplet dokumentów z budowy.
Możliwość dokupienia sąsiedniej działki (powierzchnia około 1200m).
Ogłoszenie przedstawia aktualne fotki oraz wizualizacje z projektu. Stan nieruchomości- budynek jest obecnie w stanie surowym otwartym!!
Zapraszam do kontaktu telefonicznego, a jednocześnie informuję, że nie odpisuję na smsy.
Cena do rozsądnej negocjacji.

Szczegóły oferty

  • Cena:

  • Wysokość czynszu:

  • Rodzaj budynku:

  • Powierzchnia całkowita:

  • Powierzchnia użytkowa:

  • Liczba pokoi:

  • Liczba kondygnacji:

  • Rok budowy budynku:

  • Materiał budowlany:

  • Pokrycie dachu:

  • 580 000 zł

  • -

  • wolnostojący

  • 200 m2

  • 160 m2

  • 4

  • 2

  • -

  • pustak

  • papa

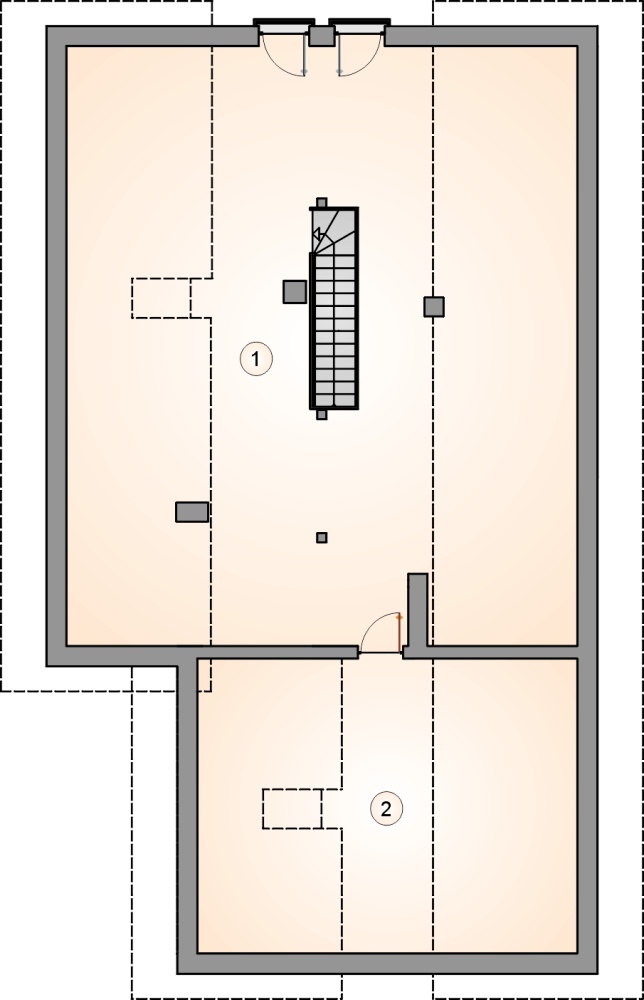
  • Podpiwniczenie:

  • Garaż:

  • Elewacja:

  • Stan budynku:

  • Okna:

  • Instalacje:

  • Ogrzewanie:

  • Charakter:

  • Dojazd:

  • nie

  • w budynku

  • -

  • do wykończenia

  • -

  • -

  • brak

  • jednorodzinny

  • polny

Działka

  • Powierzchnia:

  • Wymiary:

  • 1020 m2

  • -

  • Zagospodarowanie działki:

  • Ogrodzenie:

  • niezagospodarowana

  • nie

Adres mazowieckie, Radzymin,