header-logo.png

Prestiżowy lokal usługowy w centrum Barciński Park

łódzkie, Łódź, Śródmieście

8 130 zł/m

+99 Komercja na wynajem w Łódź Śródmieście Tylna 4f o powierzchni 140 mkw

Opis

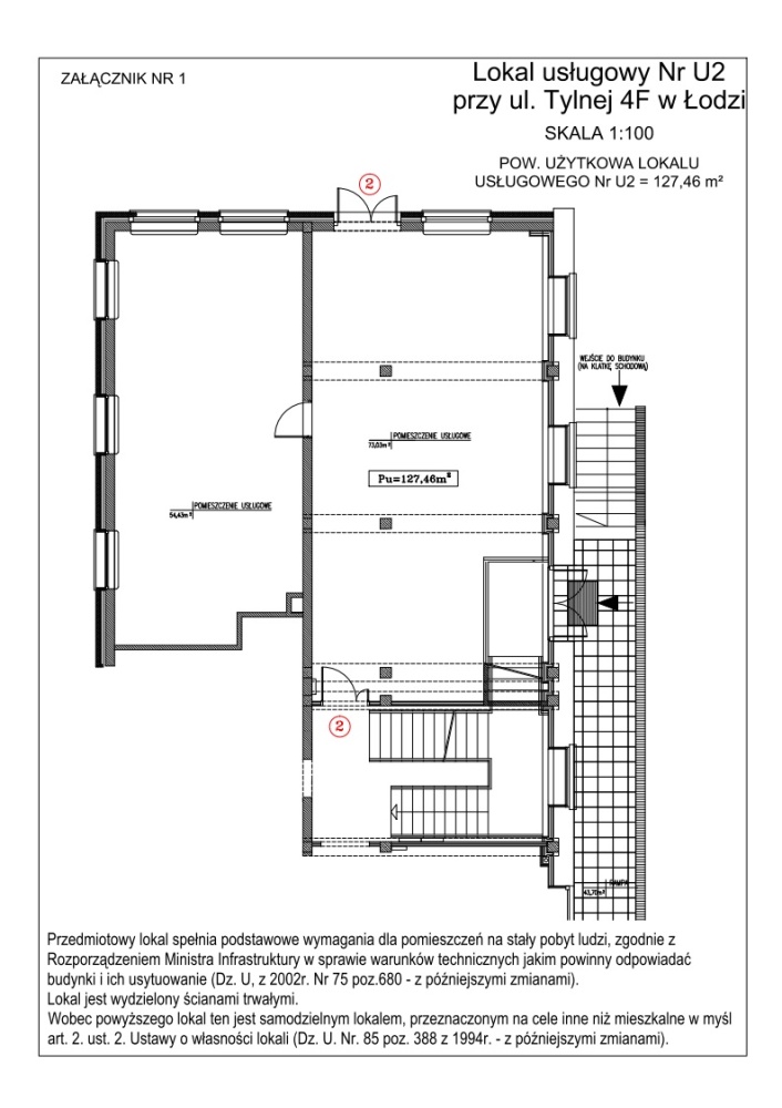
Niniejszym przedstawiam ofertę wynajmu lokalu usługowego nr U2 (dawne biuro sprzedaży dewelopera SGI) mieszczącego się w budynku 4F. Parter z dobrym wyeksponowaniem, możliwość wywieszenia szyldu reklamowego przy wejściu. Ekskluzywne miejsce idealne pod showroom, salon sprzedaży, siedzibę...

Niniejszym przedstawiam ofertę wynajmu lokalu usługowego nr U2 (dawne biuro sprzedaży dewelopera SGI) mieszczącego się w budynku 4F. Parter z dobrym wyeksponowaniem, możliwość wywieszenia szyldu reklamowego przy wejściu. Ekskluzywne miejsce idealne pod showroom, salon sprzedaży, siedzibę firmy, etc. Do lokalu możliwe jest udostępnienie miejsc parkingowych i niewielkiej komórki. Obecnie lokal ma przeznaczenie biurowo-usługowe.

Powierzchnia samego lokalu bez łazienek: ok. 127,5m2
Łazienki w sumie: ok. 12,5 m2

Dodatkowo: opłaty czynszowe + media wg. zużycia

Kwota wskazana w ofercie netto, należy doliczyć vat 23% (w sumie 10 000 zł brutto).

Więcej szczegółów udzielimy telefonicznie lub na spotkaniu.

Szczegóły oferty

  • Cena:

  • Powierzchnia użytkowa:

  • Rodzaj nieruchomości:

  • 8 130 zł

  • 140 m2

  • lokal użytkowy

  • Przeznaczenie:

  • Liczba pomieszczeń:

  • usługowy

  • 3

Adres łódzkie, Łódź, Śródmieście