header-logo.png

Bezpośrednio, Ursynów, Kraski 22, Klimatyzacja

mazowieckie, Warszawa, Ursynów

2 140 000 zł

+99 Mieszkanie na sprzedaż w Warszawa Ursynów Kraski 22 o powierzchni 113 mkw

Opis

Bezpośrednio - bez prowizji.
Mam przyjemność przedstawić Państwu, nowoczesny apartament, usytuowany w niskim, kameralnym budynku wielorodzinnym, położonym na Ursynowie, przy ul. Kraski 22.

Oferowana nieruchomość, znajduje się na 2 - ostatnim piętrze i ma 112,8 m2 powierzchni...

Bezpośrednio - bez prowizji.
Mam przyjemność przedstawić Państwu, nowoczesny apartament, usytuowany w niskim, kameralnym budynku wielorodzinnym, położonym na Ursynowie, przy ul. Kraski 22.

Oferowana nieruchomość, znajduje się na 2 - ostatnim piętrze i ma 112,8 m2 powierzchni użytkowej. Brak sąsiadów nad nami daje gwarancję ciszy i spokoju.

Budynek został oddany do użytku w 2001 roku i składa się z zaledwie kilkunastu mieszkań co sprawia, że czuć kameralny klimat tej nieruchomości. Marmurowe klatki dodatkowo podkreślają wyjątkowy status tej nieruchomości. Dostęp do budynku jest od wewnętrznej, bardzo mało uczęszczanej drogi.

Niewątpliwym atutem tej nieruchomości jest balkon oraz dwa miejsca parkingowe w garażu podziemnym. Ze względu na sąsiedztwo w postaci niskiej zabudowy, możemy cieszyć się dużą prywatnością i spokojem.

OPIS NIERUCHOMOŚCI
Prezentowana nieruchomość, jest wykończona i gotowa do zamieszkania. Całym projekt był realizowany przy wsparciu architekta.

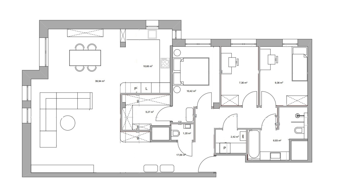
Mieszkania składa się z następujących pomieszczeń:



Salon z jadalnią: 39,94 m2

Kuchnia: 10,66 m2

Sypialnia 1: 10,42 m2 z garderobą 5,27 m2

Sypialnia 2: 9,36 m2

Sypialnia 3/gabinet: 7,30 m2

Łazienka: 6,93 m2

WC: 1,20 m2

Kotłownia/pralnia: 2,42 m2

Hol: 17,09 m2

Łącznie 112,8 m2



Piękna przestronna kuchnia wyposażona jest w meble w zabudowie wykonane na zamówienie przez stolarza oraz wysokiej jakości sprzęty AGD tj.: zmywarka, płyta indukcyjna, okap piekarnik i oraz lodówko-zamrażarka.

Salon połączony z jadalnią, wyposażony jest w drewniany stół wraz z 6 krzesłami, szafkę RTV, komodę i liczne szafki, wykonane na zamówienie. W części wypoczynkowej umiejscowiona jest duża komfortowa kanapa narożna, wraz z stylowym stolikiem kawowym.

Salon oraz kuchnia stanowią oddzielną strefę gdzie możemy w spokoju spędzać czas i relaksować się po pracowitym dniu. Następnie korytarzem możemy przejść do bardziej prywatnej - strefy mieszkalnej, w której na pierwszy plan wybija się Master bedroom wraz z prywatną garderobą zrobioną na zamówienie. Dalej znajdziemy dwa kolejne pokoje, które można zaaranżować na pokoje dla dzieci lub gabinet.

Na końcu strefy mieszkalnej znajdziemy duża łazienkę wyposażoną w przestronną wannę oraz kabinę prysznicową.

Okna w części mieszkalnej wychodzą na północ, natomiast w salonie i kuchni na północy- zachód.
Salon posiada wyjście na balkon, dużą szafę wykonaną na zamówienie z oświetleniem LED, komodę, stolik nocny oraz piękny duży narożnik idealny na wizyty znajomych. Wszystkie listwy przysufitowe posiadają oświetlenie LED.

Nowoczesna łazienka wyposażona została w prysznic typu walk-in, a także wannę, umywalkę oraz WC. Na ścianach znajdują się wieloformatowe płytki wybrane przez architekta, a w podwieszonym suficie znajduje się dodatkowe oświetlenie LED.

Pomieszczenie gospodarcze pełniące funkcję pralni oraz kotłowni wyposażone jest w nowy, jednofunkcyjny piec gazowy marki Viessmann (model Vitodens 111W) oraz posiada przygotowane miejsce do podłączenia pralki.

W holu znajdziemy osobne WC oraz zabudowaną szafę na odzież wierzchnią. Cała część komunikacyjna pokryta jest gresem natomiast w salonie i pokojach znajdują Państwo drewniany parkiet.
W salonie dodatkowo dla komfortu nabywcy została zainstalowana klimatyzacja.

Do oferowanej nieruchomości przynależą dwa miejsca parkingowe, znajdujące się w garażu podziemnym pod budynkiem, płatne dodatkowo łącznie 50 000 zł.


DODATKOWE INFORMACJE



Mieszkanie posiada bardzo niski czynsz - ok 850 zł

W mieszkaniu jest podłączony Internet światłowodowy ORANGE

Brak prowizji przy zakupie. Sprzedaż bezpośrednia

Księga wieczysta bez obciążeń - istnieje możliwość zakupu na kredyt


Jeśli zainteresowała Państwa moja oferta serdecznie zapraszam do kontaktu. Istnieje możliwość obejrzenia nieruchomości przez cały tydzień w godzinach od 7:00 do 22:00.

Szczegóły oferty

  • Cena:

  • Wysokość czynszu:

  • Piętro:

  • Liczba pięter:

  • Liczba pokoi:

  • Pow. użytkowa:

  • 2 140 000 zł

  • 860 zł

  • 2

  • 2

  • 4

  • 113 m2

  • Rodzaj budynku:

  • Rok budowy:

  • Stan mieszkania:

  • Okna:

  • Instalacje:

  • Ogrzewanie:

  • Blok

  • 2001

  • do wprowadzenia

  • nowe drewniane

  • wymienione

  • własne gazowe – junkers

Pomieszczenia dodatkowe

Adres mazowieckie, Warszawa, Ursynów