header-logo.png

Luksusowe, 3/4-pokojowe bardzo wysoki standard

mazowieckie, Warszawa, Praga-Południe

1 879 000 zł

+99 Mieszkanie na sprzedaż w Warszawa Praga-Południe Chrzanowskiego 2 o powierzchni 90 mkw

Opis

Na sprzedaż - luksusowe, unikalne 3/4-pokojowe mieszkanie wykończone w bardzo wysokim standardzie

Osiedle Praha - ul. Chrzanowskiego / Wiatraczna | Praga-Południe - Grochów

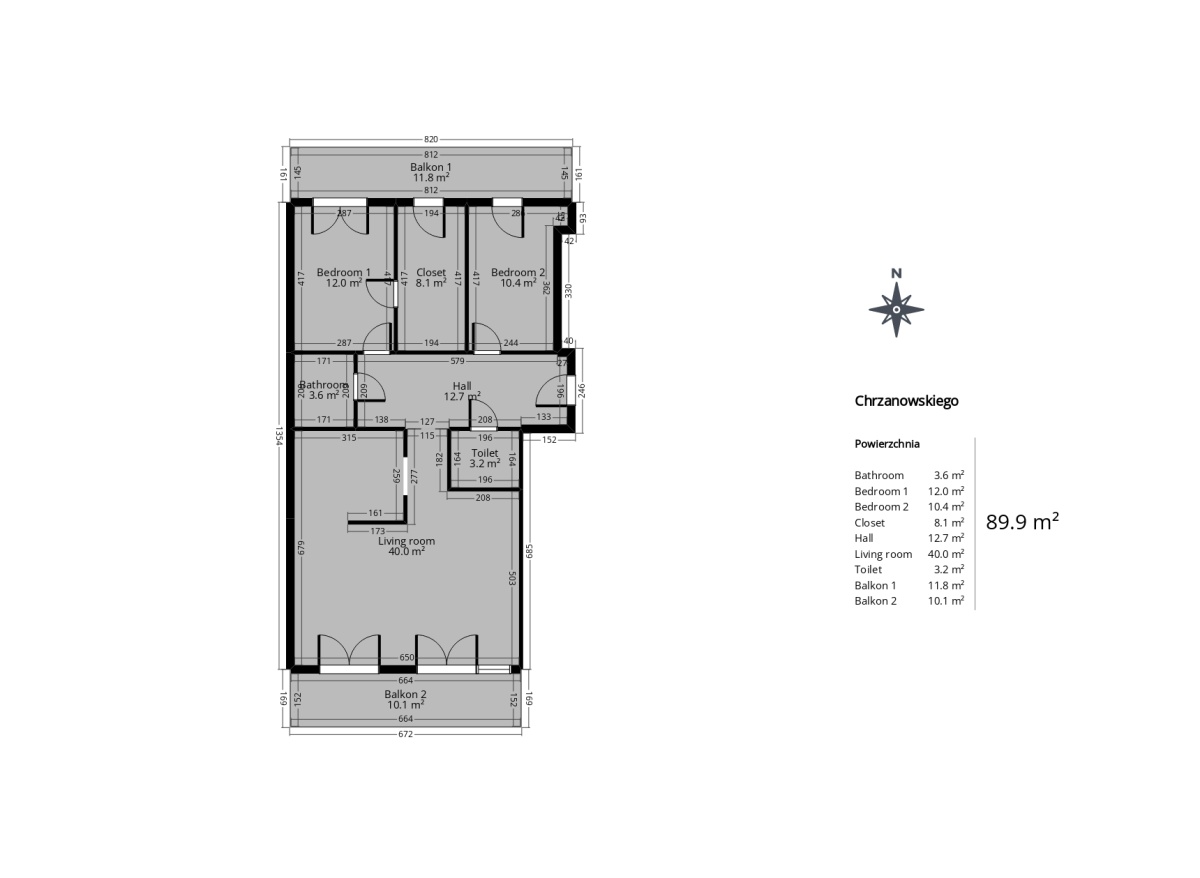
Oferuję na sprzedaż wyjątkowe mieszkanie o powierzchni 89,49 m², wykonane z najwyższej klasy materiałów:...

Na sprzedaż - luksusowe, unikalne 3/4-pokojowe mieszkanie wykończone w bardzo wysokim standardzie

Osiedle Praha - ul. Chrzanowskiego / Wiatraczna | Praga-Południe - Grochów

Oferuję na sprzedaż wyjątkowe mieszkanie o powierzchni 89,49 m², wykonane z najwyższej klasy materiałów: marmuru, granitu, litego dębu oraz elementów stolarskich na zamówienie.

Wnętrze jest eleganckie, spójne stylistycznie, dopracowane w każdym detalu i gotowe do wprowadzenia.

Mieszkanie zostało odświeżone w 2024 roku (malowanie).

Najważniejsze atuty

3/4 pokoje + 10-metrowa garderoba aktualnie połączona z sypialnią, którą można przekształcić w kolejny niezależny pokój z wejściem z korytarza,

-dwa duże balkony - każdy ok. 10 m²,
-naturalne materiały: marmur, granit, dąb,
-pełne AGD Siemens,
-klimatyzacja Mitsubishi,
-dekoracyjne grzejniki Jaga,
-oświetlenie Artemide,
-włoska skórzana sofa Natuzzi,
-wysokie, drewniane drzwi oraz drzwi antywłamaniowe,
-wszystkie zabudowy wykonane na wymiar pozostają w mieszkaniu,
-czynsz 1300 zł (z komórką i dwoma miejscami postojowymi).
-dwa niezależne miejsca garażowe
-komórka lokatorska

UKŁAD I STANDARD WYKOŃCZENIA

Salon z aneksem kuchennym - elegancja i komfort
-przestronny salon z włoską skórzaną sofą Natuzzi,
-meble wykonane na wymiar,
-solidny drewniany stół,
-designerskie oświetlenie Artemide,
-wyjście na duży balkon 10 m².
-klimatyzacja Mitsubishi,
-grzejniki dekoracyjne Jaga.

Kuchnia - Siemens + naturalny granit
-lodówka, płyta indukcyjna, zmywarka, piekarnik, mikrofalówka - Siemens,
-blat z naturalnego granitu,
-eleganckie lakierowane fronty MDF wykonywane na indywidualne zamówienie.

Podłogi
-lite drewno dąb w części dziennej i sypialniach,
-marmur w łazienkach.

Parapety
-elegancki granit.

Sypialnia główna + garderoba 10 m²
-duże łóżko małżeńskie,
-wysokie drzwi drewniane,
-bezpośrednie wyjście na drugi balkon 10 m².
-garderoba 10 m² - aktualnie w układzie master bedroom - wejście bezpośrednio z sypialni, pełni funkcję dużej prywatnej garderoby.

Możliwość zmiany układu !!!

Pomieszczenie garderoby można łatwo przekształcić w samodzielny pokój z wejściem od strony korytarza wraz z wyjściem na balkon — idealny na:

-gabinet
-pokój dziecka
-pokój gościnny
-przestrzeń do pracy zdalnej

Pokój dziecięcy
-oryginalne biurko,
-dedykowana zabudowa: szafa i regał,
-wyjście na 10 m² balkon

Łazienka
-marmur i Duravit
-armatura Duravit,
-marmurowe płyty na ścianach i podłodze,

WC
-pralka i suszarka Electrolux,
-dekoracyjna glazura,
-zabudowy MDF,
-bateria podtynkowa,
-duże lustro.

Korytarz i detale wyposażenia
-zabudowy z najwyższej jakości stolarstwa,
-lustra powiększające optycznie przestrzeń,
-wygodne siedzisko,
-drzwi antywłamaniowe,
-wysokie drewniane drzwi wewnętrzne,

Dodatkowe powierzchnie
-komórka lokatorska dodatkowo płatna 30.000 zł
-1 miejsce parkingowe w garażu podziemnym - dodatkowo płatne 60.000 zł
-2 miejsce parkingowe w garażu podziemnym - dodatkowo płatne 60.000 zł

Czynsz
1300 zł / miesiąc
(mieszkanie + komórka + 2 miejsca postojowe).

Osiedle Praha
-nowoczesna architektura,
-ochrona 24/7 i monitoring,
-cichobieżne windy,
-brak barier architektonicznych,
-piękny dziedziniec z zielenią i placem zabaw.

Lokalizacja - Grochów, Praga-Południe
-doskonała komunikacja tramwajowo-autobusowa,
-szybki wyjazd na główne arterie,
-blisko pełnej infrastruktury: sklepy, szkoły, bazarki, restauracje,
-tereny zielone: Park Skaryszewski, Olszynka Grochowska, Polińskiego, Znicza.
-niebawem stacja metra

Zapraszam na prezentację — mieszkanie robi ogromne wrażenie już od samego wejścia.

Szczegóły oferty

  • Cena:

  • Wysokość czynszu:

  • Piętro:

  • Liczba pięter:

  • Liczba pokoi:

  • Pow. użytkowa:

  • 1 879 000 zł

  • 1 300 zł

  • 6

  • 6

  • 4

  • 90 m2

  • Rodzaj budynku:

  • Rok budowy:

  • Stan mieszkania:

  • Okna:

  • Instalacje:

  • Ogrzewanie:

  • Apartamentowiec

  • 2016

  • do wprowadzenia

  • nowe PCV

  • wymienione

  • miejskie

Pomieszczenia dodatkowe

Adres mazowieckie, Warszawa, Praga-Południe